Heizlastberechnung
Voraussetzung für die Förderung einer neuen Heizungsanlage (KfW) und Förderung der Optimierung einer bestehenden Heizungsanlage (BAFA)
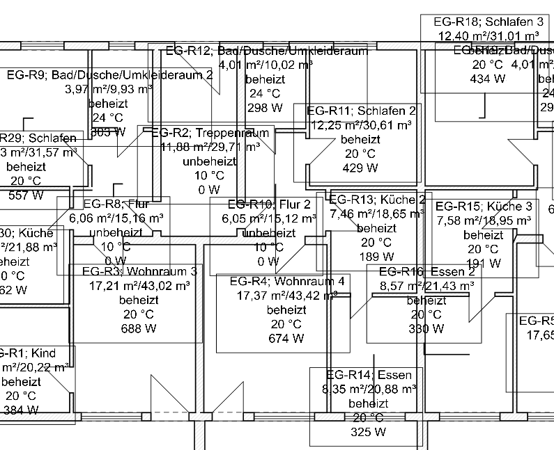
Eine Heizlastberechnung ist eine technische Berechnung, mit der ermittelt wird, wie viel Wärmeenergie ein Gebäude oder ein Raum in der kältesten zu erwartenden Außentemperatur pro Stunde benötigt, um innen die gewünschte Temperatur zu halten.
Zweck:
Grundlage für die Dimensionierung einer Heizungsanlage (z. B. Wärmepumpe, Gasheizung, Heizkörpergrößen).
Verhindert Unterdimensionierung (zu kalt im Winter) und Überdimensionierung (höhere Kosten, ineffizienter Betrieb).
Was wird berücksichtigt?
Wärmeverluste durch Transmission
Wärme, die durch Wände, Fenster, Dach, Boden nach außen entweicht.
Wärmeverluste durch Lüftung
Geplante Lüftung + Undichtigkeiten (Infiltration).
Norm-Außentemperatur
Abhängig vom Standort (in Deutschland oft zwischen −10 °C und −16 °C).
Gewünschte Raumtemperaturen
Z. B. Wohnräume 20 °C, Bäder 24 °C, Schlafzimmer 18 °C.
Ergebnis:
Die Heizlast wird in Kilowatt (kW) angegeben und beschreibt die maximale benötigte Heizleistung.
(Bild: Berechnungstool: Hottgenroth)
Während früher (als Energie noch „umsonst“ war) mit sehr groben Heizlastwerten pro Quadratmeter gerechnet wurde, ist heute diese Vorgehensweise weder sinnvoll noch zulässig. Die früher angenommenen Werte schwanken zwischen 40 und 180 W/qm.
Bei Heizlastberechnungen nach Norm kommt es bei realen Objekten zu Spreizungen der Heizlast in verschieden Räumen von 30 bis 150 W/qm.
Ein Wert von 150 W/qm sollte nicht überschritten werden.
Abhilfemaßnahmen: Fenstertausch, Dämmung Dach, Boden
